Follyhatch Farm Sang on A323

SANG proposed to support Flexford Development

The  Planning Application is for a change of use to provide a SANG at Land at Follyhatch Farm, including vehicular and pedestrian access points and natural play areas.  

A SANG (Suitable Alternative Natural Green Space) is an area that is aimed at protecting an SPA Special Protection Are for nature conservation. A SANG is a buffer zones in which development is constrained to prevent damage to the SPA. 

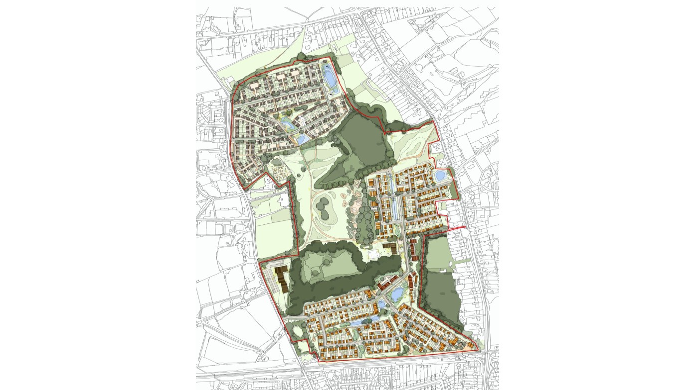
Follyhatch SANG will cover 18.8ha to support the outline residential development proposals at Land at Normandy and Flexford located just to the east of the SANG for up to 950 dwellings.

The applicant considers that there is no increase in surface water flood risk on-site or off-site as a result of the proposal and there are no technical concerns in relation to road safety and the traffic creation.

A public footpath  travels across the southern part connecting to a wider network of public footpaths that travel east towards Normandy and south towards Wanborough. The SANG Site is located circa 1.2km  to the east of Ash train station and Wanborough station is circa 2km (as the crow flies) to the south east of the SANG Site. Bus stops are located on the A323, with current services to Guildford and Aldershot.

 

Images

Share this article

Related Articles
Previous: Tangley Place Farm, Worplesdon Next: Sutton Green Golf Club
Back to Key Sites

Help us make Guildford better

We want our town to be vibrant, attractive and liveable. We support development that brings a sense of place and enhances the best aspects of our town. If such aims can be embraced, we believe Guildford has the chance to lead the way in enabling sensitive and sustainable development.

Pressures for development are increasing. Planning rules are being eased. The Society’s commitment to standing up for Guildford is needed more than ever.

Support Us

Getting involved allows the society to continue its work.   We welcome new members, from every age and background.  Membership provides an opportunity for you to contribute to the continued health of the town and surrounding area, and to meet other people who care about Guildford.